rotterdam glass extension modern architecture 30's private client HOYT architectrotterdam glass extension modern architecture 30's private client HOYT architectrotterdam glass extension modern architecture 30's private client HOYT architectrotterdam glass extension modern architecture 30's private client HOYT architectrotterdam glass extension modern architecture 30's private client HOYT architectrotterdam glass extension modern architecture 30's private client HOYT architectrotterdam glass extension modern architecture 30's private client HOYT architectrotterdam glass extension modern architecture 30's private client HOYT architectrotterdam glass extension modern architecture 30's private client HOYT architectrotterdam glass extension modern architecture 30's private client HOYT architect floorplanrotterdam glass extension modern architecture 30's private client HOYT architect facade sectionrotterdam glass extension modern architecture 30's private client HOYT architect sketchGlazen Aanbouw Rotterdam HOYT Architecten

Extension Straatweg

  • Rotterdam
  • Private
  • 2010
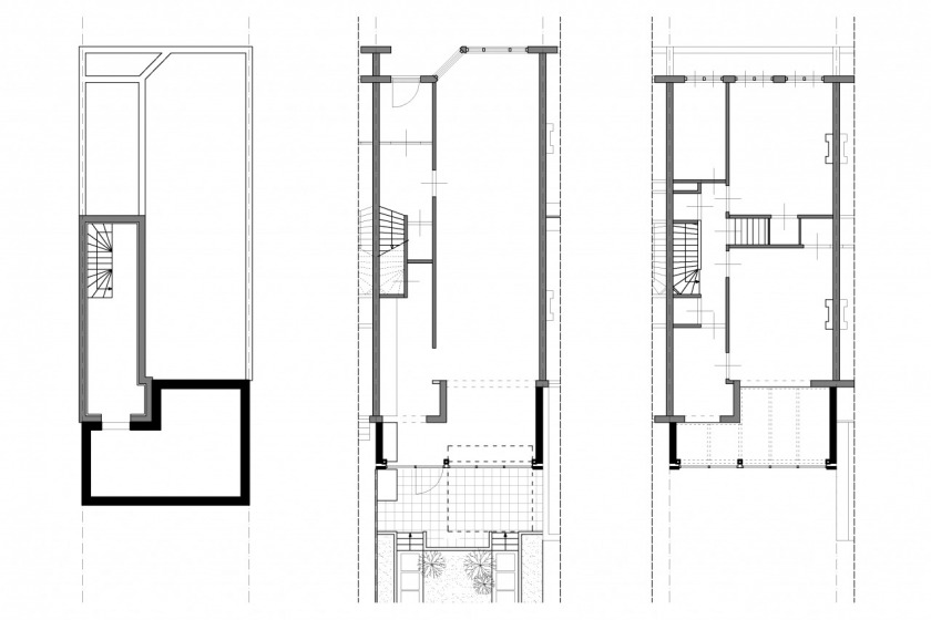
We designed a glass extension to an existing house in Rotterdam. The house is built in a traditional 1930’s brick architecture with small windows and therefore rather dark living spaces. The clients wished to improve the house in such a way that it would give them more living quality.

As architects we are often slowed down by the client, but in this case they demanded an even more spectacular design than first proposed. What started out as a conservatory has become a two story glass house. With a glass façade, a glass roof and a glass floor.

The house is extended with “just” 2.5 meters, but it gained lots of light and spatial quality. With the façade, floor and roof made of glass, the light now penetrates deeply into the living room.

The first floor is made of reinforced layered glass on slender steel beams. This does not only allow the light enter but it also creates a visual relationship between the living room and the study upstairs.

An especially developed, electronic controlled, 2.8 meter wide pivoting door gradually connects the living room with the terrace and garden. The terrace is situated on a new built basement to store the owners beer glass collection.

With this extension the house is fully adapted to the needs of the client.
Opnieuw spelen
Sluiten